47 J Ryan Way, Watertown, CT 06795 (MLS # 24167873)

Save to Favorites
Print
Share
PRICE $780,000 dsIDX morgage calculator
BEDS 4
BATHS 3
HOME SIZE 3,833 sqft
LOT SIZE 30,492 sqft

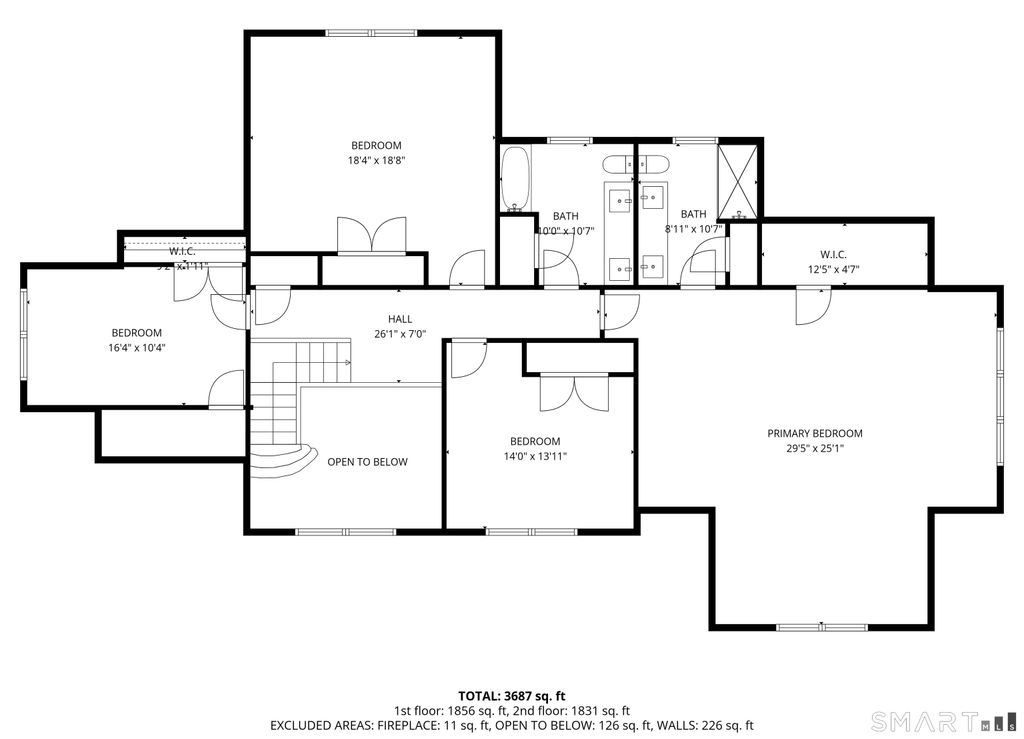
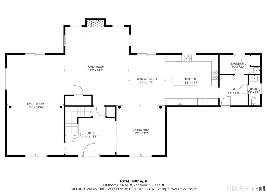
"Coming Soon" Welcome to 47 J Ryan Way in Watertown a stunning four-bedroom home thoughtfully designed for both everyday living and exceptional entertaining. Offering over 3,600 square feet of beautifully finished space, this residence makes an immediate impression from the moment you step into the dramatic two-story foyer. This expansive home features 11 well-appointed rooms, including four generously sized bedrooms highlighted by an enormous primary suite that offers comfort and privacy. The main level showcases a warm and inviting family room with fireplace, a front-to-back living room filled with natural light, and a formal dining room perfect for hosting gatherings. At the heart of the home is a spacious eat-in kitchen, ideal for both casual meals and entertaining. Additional highlights include two full baths and two half baths, stunning hardwood floors throughout, and beautifully tiled bathrooms that add a refined touch. Situated on a level .70-acre lot in a quiet cul-de-sac setting, this property offers both privacy and convenience. The oversized two-car garage adds functionality, while the setting enhances the home's appeal. With three brand-new homes available, all completed, this is a rare opportunity to secure a move-in-ready property in one of Watertown's most desirable locations. Motivated seller don't miss your chance to make this exceptional home yours

DAYS ON MARKET 1 LAST UPDATED 4/27/2026
YEAR BUILT 2024 GARAGE SPACES 2.0
COUNTY Litchfield STATUS Active
PROPERTY TYPE(S) Single Family

SCHOOLS
Elementary School Polk
Jr. High School Swift
High School Watertown


ADDITIONAL DETAILS
AIR Central Air
AIR CONDITIONING Yes
APPLIANCES Dishwasher, Electric Water Heater, Gas Range, Microwave, Oven, Range, Refrigerator
BASEMENT Full, Unfinished, Yes
CONSTRUCTION Brick, Frame, Vinyl Siding
FIREPLACE Yes
GARAGE Attached Garage, Yes
HEAT Fireplace Insert, Forced Air, Propane
INTERIOR Entrance Foyer, Open Floorplan
LOT 0.7 acre(s)
LOT DESCRIPTION Cul-De-Sac, Level
PARKING Garage Door Opener, Attached
SEWER Public Sewer
STYLE Colonial
TAXES 16841
WATER Public
ZONING R30
MORTGAGE CALCULATOR
   

TOTAL MONTHLY PAYMENT

0
P
I
*Estimate only



We respect your online privacy and will never spam you. By submitting this form with your telephone number you are consenting for Ryan Smith to contact you even if your name is on a Federal or State "Do not call List".

Listing courtesy of Regency Real Estate, LLC
Copyright Smart MLS. All rights reserved. Information is deemed reliable but not guaranteed to be accurate.

This IDX solution is (c) Diverse Solutions 2026.

Bristol: 985 Farmington Ave, Bristol, CT 06010
Avon: 412 West Avon Rd, Avon, CT 06001
(860) 578-2016 | ryansmith@tier1realestate.com

Subscribe to New Listings

  • Click here to review our privacy policy.
  • This field is for validation purposes and should be left unchanged.
The information on this website is for general information purposes only. Nothing on this site should be taken as legal advice for any individual case or situation. This information is not intended to create, and receipt or viewing does not constitute, a real estate agent and client relationship. Tier 1 Real Estate is licensed & insured. Call (860) 578-2016. Email with any questions you may have regarding this website, or anything associated with it. @2019 All Rights Reserved. 

linkedin facebook pinterest youtube rss twitter instagram facebook-blank rss-blank linkedin-blank pinterest youtube twitter instagram