150 Hope Street #14, Stamford, CT 06906 (MLS # 24164506)

Save to Favorites
Print
Share
PRICE $599,000 dsIDX morgage calculator
BEDS 3
BATHS 1.5
HOME SIZE 1,445 sqft
LOT SIZE n/a

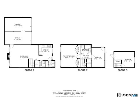
Tucked away in a quiet complex in Glenbrook, this 3 bed 1.5 bath townhouse has it all - 2 car garage plus one outside spot, laundry in unit, central air, fireplace, backyard, and fresh paint. The eat in kitchen features stone countertops and stainless steel appliances including dishwasher. The second floor features 2 large bedrooms with ample closet space, and a full bathroom. The 3rd bedroom is located on the 3rd floor, with ample closet and additional attic walk-in storage space. Additional storage in 2nd floor of garage. Sewer and water included in HOA fee. This unit is within walking distance to the Glenbrook Train Station, shops, restaurants, and a short drive to Downtown Stamford!

DAYS ON MARKET 1 LAST UPDATED 4/3/2026
YEAR BUILT 1983 GARAGE SPACES 2.0
COUNTY Fairfield STATUS Active
PROPERTY TYPE(S) Condo/Townhouse/Co-Op

SCHOOLS
Elementary School Per Board of Ed
High School Per Board of Ed


ADDITIONAL DETAILS
AIR Central Air, Heat Pump
AIR CONDITIONING Yes
AMENITIES Insurance, Sewer, Snow Removal, Trash, Water
APPLIANCES Dishwasher, Dryer, Electric Range, Electric Water Heater, Range Hood, Refrigerator, Washer
BASEMENT None
CONSTRUCTION Clapboard, Frame, Wood Siding
FIREPLACE Yes
GARAGE Attached Garage, Yes
HEAT Electric, Forced Air
HOA DUES 612
LOT 0
LOT DESCRIPTION Level
PARKING Paved, Attached
SEWER Public Sewer
STORIES 3+
STYLE Townhouse
TAXES 6212
WATER Public
ZONING MZN
MORTGAGE CALCULATOR
   

TOTAL MONTHLY PAYMENT

0
P
I
*Estimate only



We respect your online privacy and will never spam you. By submitting this form with your telephone number you are consenting for Ryan Smith to contact you even if your name is on a Federal or State "Do not call List".

Listing courtesy of Compass Connecticut, LLC
Copyright Smart MLS. All rights reserved. Information is deemed reliable but not guaranteed to be accurate.

This IDX solution is (c) Diverse Solutions 2026.

Bristol: 985 Farmington Ave, Bristol, CT 06010
Avon: 412 West Avon Rd, Avon, CT 06001
(860) 578-2016 | ryansmith@tier1realestate.com

Subscribe to New Listings

  • Click here to review our privacy policy.
  • This field is for validation purposes and should be left unchanged.
The information on this website is for general information purposes only. Nothing on this site should be taken as legal advice for any individual case or situation. This information is not intended to create, and receipt or viewing does not constitute, a real estate agent and client relationship. Tier 1 Real Estate is licensed & insured. Call (860) 578-2016. Email with any questions you may have regarding this website, or anything associated with it. @2019 All Rights Reserved. 

linkedin facebook pinterest youtube rss twitter instagram facebook-blank rss-blank linkedin-blank pinterest youtube twitter instagram