52 Arnold Way #52, West Hartford, CT 06119 (MLS # 24154288)

Save to Favorites
Print
Share
PRICE $2,150 dsIDX morgage calculator
BEDS 2
BATHS 1
HOME SIZE 896 sqft
LOT SIZE n/a

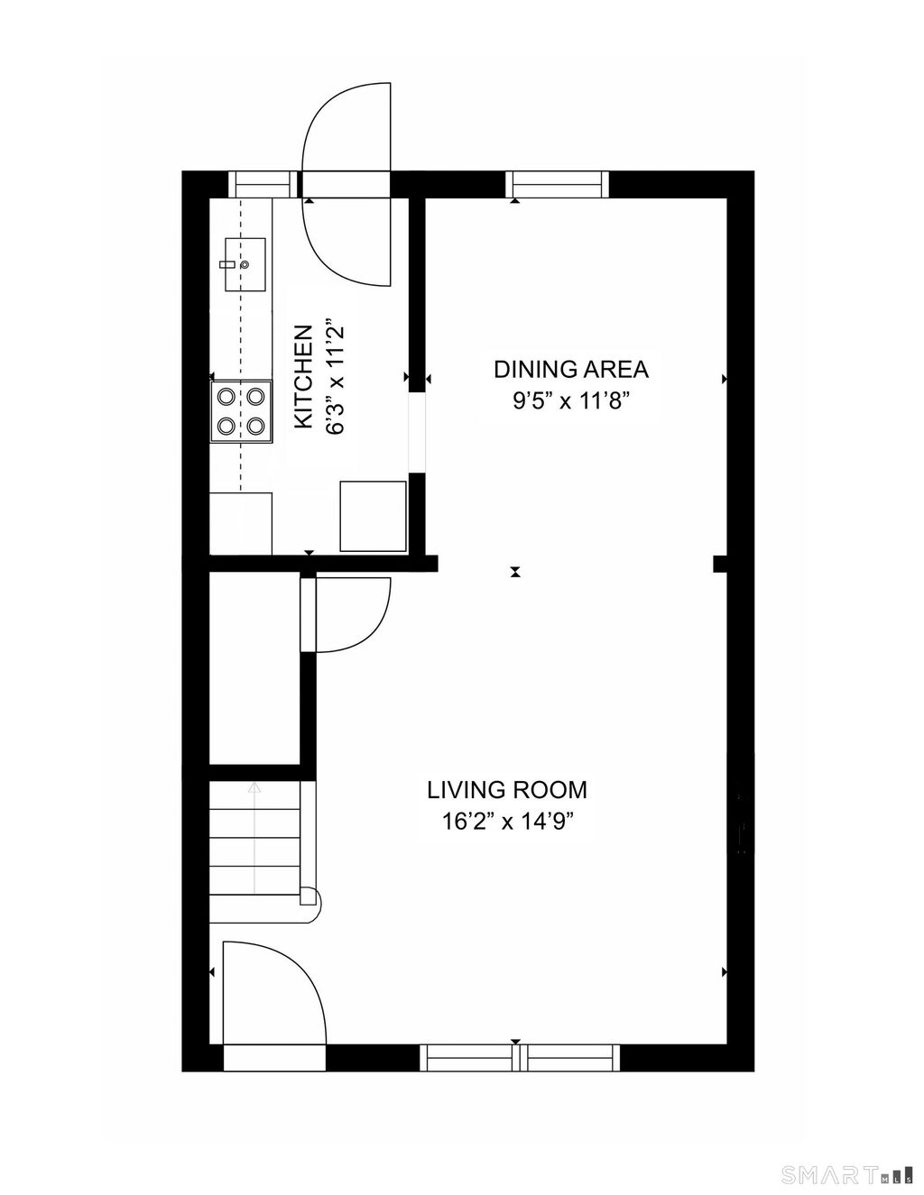
Just a short walk to West Hartford Center and Blue Back Square, this freshly painted 2 bedroom/1 bath townhouse is move in ready. HEAT and HOT WATER are included in the rent. This sun-filled condo features a neutral interior, open living/dining room, new appliances and refinished hardwood floors throughout. Upstairs are two bedrooms and a full bath. The unit comes with an assigned parking space located near the back door. Nothing to maintain - tenant responsible for electricity and cable/internet. This is carefree living in the heart of it all. Easy access to highways and downtown Hartford. Don't miss out on this opportunity to live in West Hartford Center with restaurants, shops, Whole Foods and the Trout Brook Trail at your doorstep. No smoking. Pets considered on a case by case basis. Application, credit/background/eviction check required. Landlord can make nearby garage space available for $150/month. Available for immediate occupancy.

DAYS ON MARKET 1 LAST UPDATED 2/26/2026
YEAR BUILT 1949 COUNTY Hartford
STATUS Active PROPERTY TYPE(S) Rental Properties

SCHOOLS
Elementary School Morley
High School Hall


ADDITIONAL DETAILS
AIR None
AMENITIES Sewer, Snow Removal, Trash, Water
APPLIANCES Gas Water Heater, Oven, Range, Refrigerator
BASEMENT Concrete, Full, Storage Space, Unfinished, Yes
CONSTRUCTION Brick
HEAT Hot Water, Natural Gas
LOT 0
LOT DESCRIPTION Level
PARKING Off Street
STORIES 2
STYLE Townhouse
WATER Public
ZONING Rm-1,R
MORTGAGE CALCULATOR
   

TOTAL MONTHLY PAYMENT

0
P
I
*Estimate only



We respect your online privacy and will never spam you. By submitting this form with your telephone number you are consenting for Ryan Smith to contact you even if your name is on a Federal or State "Do not call List".

Listing courtesy of Berkshire Hathaway NE Prop.
Copyright Smart MLS. All rights reserved. Information is deemed reliable but not guaranteed to be accurate.

This IDX solution is (c) Diverse Solutions 2026.

Bristol: 985 Farmington Ave, Bristol, CT 06010
Avon: 412 West Avon Rd, Avon, CT 06001
(860) 578-2016 | ryansmith@tier1realestate.com

Subscribe to New Listings

  • Click here to review our privacy policy.
  • This field is for validation purposes and should be left unchanged.
The information on this website is for general information purposes only. Nothing on this site should be taken as legal advice for any individual case or situation. This information is not intended to create, and receipt or viewing does not constitute, a real estate agent and client relationship. Tier 1 Real Estate is licensed & insured. Call (860) 578-2016. Email with any questions you may have regarding this website, or anything associated with it. @2019 All Rights Reserved. 

linkedin facebook pinterest youtube rss twitter instagram facebook-blank rss-blank linkedin-blank pinterest youtube twitter instagram