36 Village Drive, New Canaan, CT 06840 (MLS # 24151120)

Save to Favorites
Print
Share
PRICE $1,695,000 dsIDX morgage calculator
BEDS 3
BATHS 2
HOME SIZE 1,396 sqft
LOT SIZE 15,682 sqft

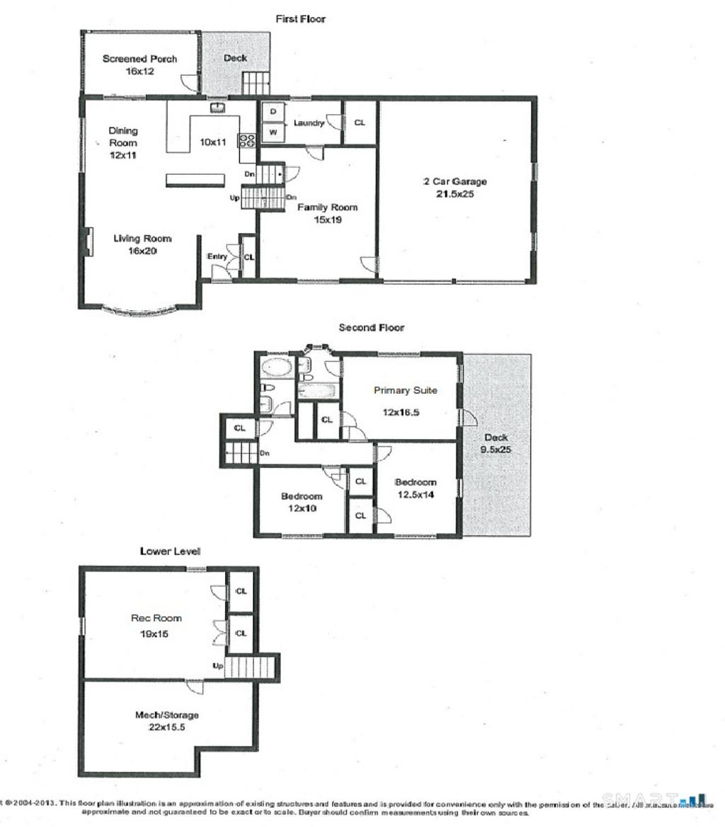
Location dream! This charming Colonial styled split level home is picture perfect in sought after neighborhood with newly paved sidewalks to schools, YMCA, Waveny Park and town! Great open layout with almost 2200SF of living space and hardwood floors throughout. Large bay window and wood-burning fireplace are the focal points in the Living Room. A separate Dining area is open to Kitchen w/Viking gas cooktop & stainless appliances. Sunny, main floor family room is convenient with laundry room and access to garage. A large upstairs Primary Suite has walk-in closet, full bath and opens to an upper level deck. Two other good sized bedrooms and full bath across the hall. The lower level media room w/closet can be additional guest area, playroom or office. Delightful screened in porch is perfect for relaxed entertaining and offers easy access to the spacious, flat yard. Enjoy mature landscaping and room for playscapes and lawn games. The two car garage and large parking area in driveway has plenty of space for a bball hoop! Natural gas hook-up in street for easy switch if desired as well as great expansion possibilities to make this home your own. Being sold as is. Tenants are currently in place, showing appts required.

DAYS ON MARKET 1 LAST UPDATED 2/19/2026
YEAR BUILT 1959 GARAGE SPACES 2.0
COUNTY Fairfield STATUS Active
PROPERTY TYPE(S) Single Family

SCHOOLS
Elementary School South
Jr. High School Saxe Middle
High School New Canaan


ADDITIONAL DETAILS
AIR Central Air
AIR CONDITIONING Yes
APPLIANCES Dishwasher, Disposal, Dryer, Gas Cooktop, Microwave, Oven, Range, Refrigerator, Washer
BASEMENT Finished, Full, Yes
CONSTRUCTION Frame, Shingle Siding, Wood Siding
EXTERIOR Balcony
FIREPLACE Yes
GARAGE Attached Garage, Yes
HEAT Hot Water, Oil
INTERIOR Entrance Foyer, Open Floorplan
LOT 0.36 acre(s)
LOT DESCRIPTION Level
PARKING Attached
SEWER Public Sewer
STYLE Split Level
TAXES 13794
WATER Public
ZONING 33AC
MORTGAGE CALCULATOR
   

TOTAL MONTHLY PAYMENT

0
P
I
*Estimate only



We respect your online privacy and will never spam you. By submitting this form with your telephone number you are consenting for Ryan Smith to contact you even if your name is on a Federal or State "Do not call List".

Listing courtesy of Brown Harris Stevens
Copyright Smart MLS. All rights reserved. Information is deemed reliable but not guaranteed to be accurate.

This IDX solution is (c) Diverse Solutions 2026.

Bristol: 985 Farmington Ave, Bristol, CT 06010
Avon: 412 West Avon Rd, Avon, CT 06001
(860) 578-2016 | ryansmith@tier1realestate.com

Subscribe to New Listings

  • Click here to review our privacy policy.
  • This field is for validation purposes and should be left unchanged.
The information on this website is for general information purposes only. Nothing on this site should be taken as legal advice for any individual case or situation. This information is not intended to create, and receipt or viewing does not constitute, a real estate agent and client relationship. Tier 1 Real Estate is licensed & insured. Call (860) 578-2016. Email with any questions you may have regarding this website, or anything associated with it. @2019 All Rights Reserved. 

linkedin facebook pinterest youtube rss twitter instagram facebook-blank rss-blank linkedin-blank pinterest youtube twitter instagram