6A South Brook Drive, Stamford, CT 06903 (MLS # 24150725)

Save to Favorites
Print
Share
PRICE $2,175,000 dsIDX morgage calculator
BEDS 4
BATHS 3
HOME SIZE 3,782 sqft
LOT SIZE 2.06 ac

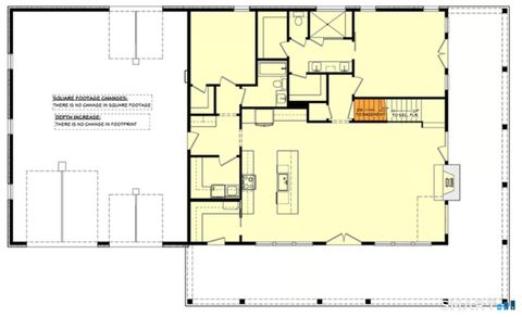
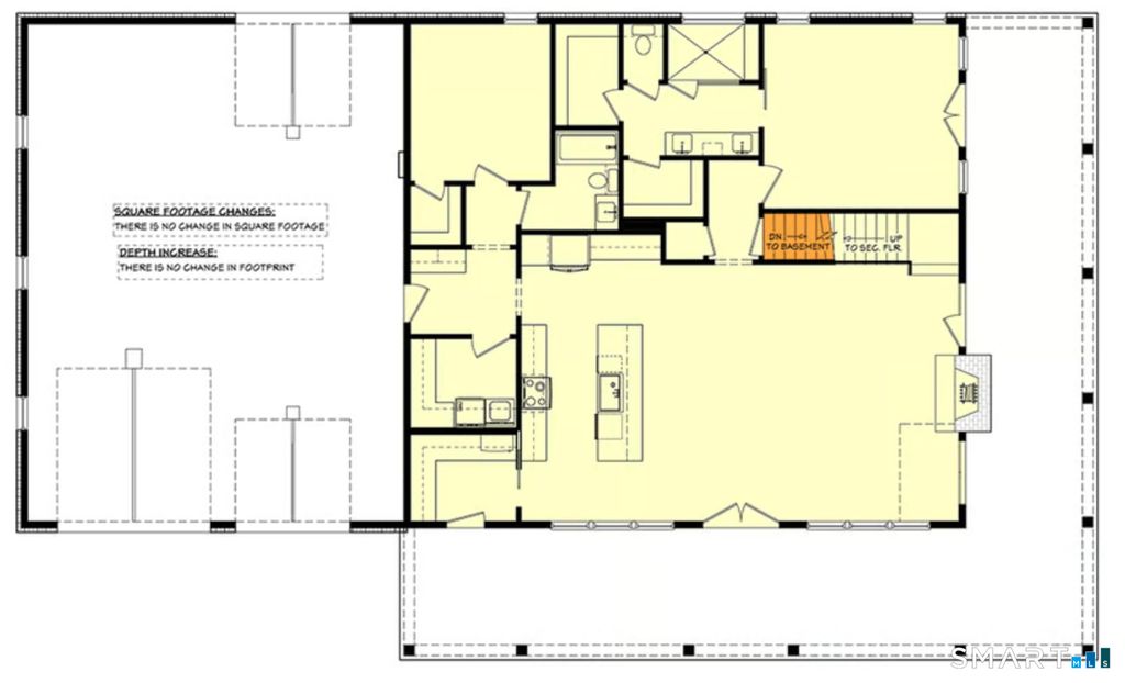
A rare opportunity to create a custom modern retreat in one of North Stamford's most serene settings. Located in a prestigious enclave of fine residences on a quiet cul-de-sac, this stunning to-be-built modern home offers a rare combination of luxury, privacy, and natural beauty. Featuring 4 bedrooms plus loft, 3 baths, and 3,782 sq ft of thoughtfully designed living space, the home is sited on 2 scenic acres with peaceful seasonal reservoir views-ideal as a full-time residence or weekend escape. A charming covered front porch leads to a dramatic two-story foyer and expansive Great Room with fireplace, soaring ceilings, and walls of windows overlooking the landscape. The open chef's kitchen boasts an oversized island, exquisite cabinetry, high-end appliances, and walk-in pantry, connecting seamlessly to a wraparound covered porch designed for great outdoor living. The main-level primary suite offers a spa-like bath, dual walk-in closets, and French doors opening to the porch. A 2nd first-floor bedroom with adjacent full bath provides ideal guest or home office space. Mudroom and laundry room complete the 1st level. Upstairs includes 2 bedrooms, full bath, and bright open loft. Optional finished walkout lower level adds up to 2,260 sf, at add'l cost. Conveniently located near fine dining, shopping, theaters, parks, golf, hiking, beaches, and everything the vibrant City of Stamford offers, easy access to train, airport and Hwys! One hour to NYC! Renderings are representational.

DAYS ON MARKET 1 LAST UPDATED 1/23/2026
YEAR BUILT 2027 GARAGE SPACES 4.0
COUNTY Fairfield STATUS Active
PROPERTY TYPE(S) Single Family

SCHOOLS
Elementary School Roxbury
High School Westhill


ADDITIONAL DETAILS
AIR Central Air
AIR CONDITIONING Yes
BASEMENT Full, Unfinished, Walk-Out Access, Yes
CONSTRUCTION Frame, HardiPlank Type
FIREPLACE Yes
GARAGE Attached Garage, Yes
HEAT Electric, Heat Pump
LOT 2.06 acre(s)
LOT DESCRIPTION Cul-De-Sac, Wooded
PARKING Attached
SEWER Septic Tank
STYLE Farm House, Modern
TAXES 13
WATER Well
ZONING RA3
MORTGAGE CALCULATOR
   

TOTAL MONTHLY PAYMENT

0
P
I
*Estimate only



We respect your online privacy and will never spam you. By submitting this form with your telephone number you are consenting for Ryan Smith to contact you even if your name is on a Federal or State "Do not call List".

Listing courtesy of Coldwell Banker Realty
Copyright Smart MLS. All rights reserved. Information is deemed reliable but not guaranteed to be accurate.

This IDX solution is (c) Diverse Solutions 2026.

Bristol: 985 Farmington Ave, Bristol, CT 06010
Avon: 412 West Avon Rd, Avon, CT 06001
(860) 578-2016 | ryansmith@tier1realestate.com

Subscribe to New Listings

  • Click here to review our privacy policy.
  • This field is for validation purposes and should be left unchanged.
The information on this website is for general information purposes only. Nothing on this site should be taken as legal advice for any individual case or situation. This information is not intended to create, and receipt or viewing does not constitute, a real estate agent and client relationship. Tier 1 Real Estate is licensed & insured. Call (860) 578-2016. Email with any questions you may have regarding this website, or anything associated with it. @2019 All Rights Reserved. 

linkedin facebook pinterest youtube rss twitter instagram facebook-blank rss-blank linkedin-blank pinterest youtube twitter instagram