5 Coe Avenue, Portland, CT 06480 (MLS # 24150436)

Save to Favorites
Print
Share

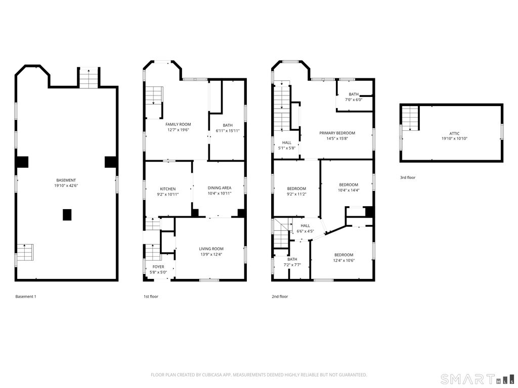
Classic farmhouse charm meets modern flexibility in the heart of Portland. This 4 bedroom, 3 full-bath Colonial is ideally located just minutes from the Connecticut River Waterfront Park and offers an easy commute to Middletown. A two-story addition completed in 2005 adds unexpected space and versatility to this inviting home. A covered front porch sets the tone as you step into a bright living room featuring hardwood floors and a cozy wood stove. The main level flows effortlessly into a kitchen with built-ins, stainless steel appliances, and ample white cabinetry, opening to a dining area highlighted by additional built-ins and updated lighting. An extra living space on the main floor provides the perfect spot for relaxing, working from home, or entertaining guests. The primary suite offers a unique private retreat with its own staircase and full bath-ideal for a guest suite, in-law potential, or secluded owner's space. Three additional bedrooms and another full bath complete the upper level. Additional features include thermopane windows, a walk-up attic for extra storage or future expansion, solar panels, and a patio that opens to a spacious, lovingly maintained backyard. The outdoor space is beautifully adorned with fruit trees and flowering plantings, creating a peaceful setting for gatherings or quiet enjoyment. A rare opportunity to own a well-cared-for home that blends timeless character, thoughtful updates, and a prime central location.

DAYS ON MARKET 1 LAST UPDATED 2/3/2026
YEAR BUILT 1927 COUNTY Middlesex
STATUS Active PROPERTY TYPE(S) Single Family

SCHOOLS
Elementary School Valley View
Jr. High School Portland
High School Portland


ADDITIONAL DETAILS
AIR Ceiling Fan(s), Window Unit(s)
AIR CONDITIONING Yes
APPLIANCES Dishwasher, Dryer, Electric Range, Microwave, Refrigerator
BASEMENT Concrete, Full, Storage Space, Sump Pump, Unfinished, Yes
CONSTRUCTION Concrete, Frame, Stone, Vinyl Siding
EXTERIOR Garden
FIREPLACE Yes
HEAT Active Solar, Baseboard, Oil
LOT 8276 sq ft
LOT DESCRIPTION Level
PARKING Paved, Off Street, Driveway
SEWER Public Sewer
STYLE Colonial, Farm House
TAXES 5790
WATER Public
ZONING R10
MORTGAGE CALCULATOR
   

TOTAL MONTHLY PAYMENT

0
P
I
*Estimate only



We respect your online privacy and will never spam you. By submitting this form with your telephone number you are consenting for Ryan Smith to contact you even if your name is on a Federal or State "Do not call List".

Listing courtesy of KW Legacy Partners
Copyright Smart MLS. All rights reserved. Information is deemed reliable but not guaranteed to be accurate.

This IDX solution is (c) Diverse Solutions 2026.

Bristol: 985 Farmington Ave, Bristol, CT 06010
Avon: 412 West Avon Rd, Avon, CT 06001
(860) 578-2016 | ryansmith@tier1realestate.com

Subscribe to New Listings

  • Click here to review our privacy policy.
  • This field is for validation purposes and should be left unchanged.
The information on this website is for general information purposes only. Nothing on this site should be taken as legal advice for any individual case or situation. This information is not intended to create, and receipt or viewing does not constitute, a real estate agent and client relationship. Tier 1 Real Estate is licensed & insured. Call (860) 578-2016. Email with any questions you may have regarding this website, or anything associated with it. @2019 All Rights Reserved. 

linkedin facebook pinterest youtube rss twitter instagram facebook-blank rss-blank linkedin-blank pinterest youtube twitter instagram