600 Freya Lane, East Hampton, CT 06424 (MLS # 24150317)

Save to Favorites
Print
Share
PRICE $619,400 dsIDX morgage calculator
BEDS 4
BATHS 2.5
HOME SIZE 2,276 sqft
LOT SIZE 19,167 sqft

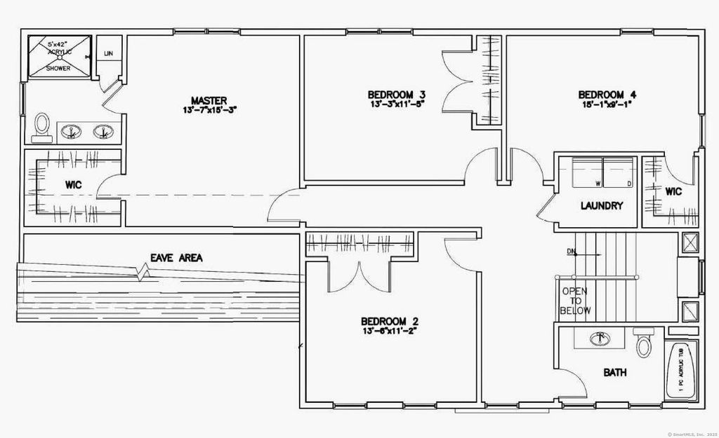
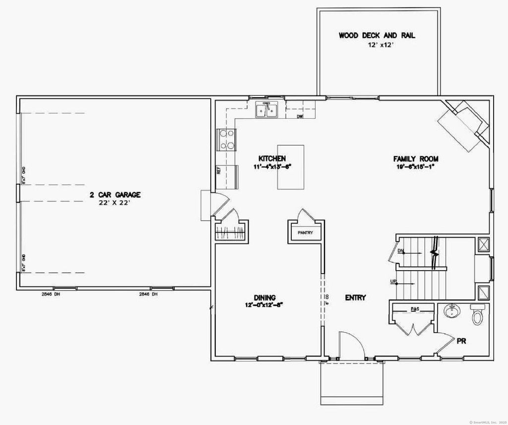
Lake Overlook Estates - an enclave of 12 homesites with stunning seasonal views of Lake Pocotopaug. Lot 4 - last home site available for Carma, LLC. The Colonial - offering a classic Colonial look. The first floor offers an open floor plan with great room and kitchen located in the entire back of home and a large dining room. The beautiful staircase is set to the side with open railings, a large window and window seat. The second floor offers a large primary bedroom suite and walk in closet and ensuite with walk in tile shower. One will also enjoy an oversized walk in laundry room with plenty of storage. Some possible options include front porch, 12x12 sunroom and so much more. Some additional standard features include granite counters, onsite finished hardwood floors throughout first and second floor, gas fireplace, decks, white cabinetry. The list goes on! Public sewer, public water. Please do not go onto site. Road is under construction.

DAYS ON MARKET 3 LAST UPDATED 1/21/2026
TRACT Lake Overlook Estates YEAR BUILT 2026
COMMUNITY Lake Overlook Estates GARAGE SPACES 2.0
COUNTY Middlesex STATUS Active
PROPERTY TYPE(S) Single Family

SCHOOLS
Elementary School Per Board of Ed
High School Per Board of Ed


ADDITIONAL DETAILS
AIR Central Air
AIR CONDITIONING Yes
APPLIANCES Electric Water Heater
BASEMENT Full, Unfinished, Yes
CONSTRUCTION Frame, Vinyl Siding
FIREPLACE Yes
GARAGE Attached Garage, Yes
HEAT Forced Air, Propane
INTERIOR Open Floorplan
LOT 0.44 acre(s)
PARKING Attached
SEWER Public Sewer
STYLE Colonial
SUBDIVISION Lake Overlook Estates
VIEW Yes
VIEW DESCRIPTION Water
WATER Public
ZONING 0
MORTGAGE CALCULATOR
   

TOTAL MONTHLY PAYMENT

0
P
I
*Estimate only



We respect your online privacy and will never spam you. By submitting this form with your telephone number you are consenting for Ryan Smith to contact you even if your name is on a Federal or State "Do not call List".

Listing courtesy of Berkshire Hathaway NE Prop.
Copyright Smart MLS. All rights reserved. Information is deemed reliable but not guaranteed to be accurate.

This IDX solution is (c) Diverse Solutions 2026.

Bristol: 985 Farmington Ave, Bristol, CT 06010
Avon: 412 West Avon Rd, Avon, CT 06001
(860) 578-2016 | ryansmith@tier1realestate.com

Subscribe to New Listings

  • Click here to review our privacy policy.
  • This field is for validation purposes and should be left unchanged.
The information on this website is for general information purposes only. Nothing on this site should be taken as legal advice for any individual case or situation. This information is not intended to create, and receipt or viewing does not constitute, a real estate agent and client relationship. Tier 1 Real Estate is licensed & insured. Call (860) 578-2016. Email with any questions you may have regarding this website, or anything associated with it. @2019 All Rights Reserved. 

linkedin facebook pinterest youtube rss twitter instagram facebook-blank rss-blank linkedin-blank pinterest youtube twitter instagram