30 Green Manor Drive, East Hartford, CT 06118 (MLS # 24150214)

Save to Favorites
Print
Share
PRICE $285,000 dsIDX morgage calculator
BEDS 3
BATHS 1
HOME SIZE 1,506 sqft
LOT SIZE 12,633 sqft

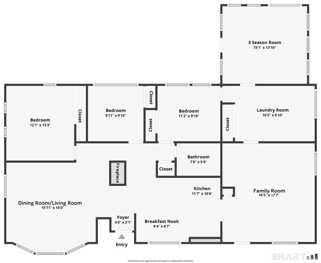
Welcome to 30 Green Manor Drive. Enjoy one floor living in this 3 bedroom, 1 bath ranch. This house has a flexible floor plan where the main living areas can be configured to your needs. The living room, now being used as a dining room, has a fireplace and a large bay window that lets in a lot of natural light. The family room is carpeted and has built-in cabinets and shelving. The eat-in kitchen has plenty of storage and an island. There is is also a dining area within this kitchen. All three bedrooms are located on the backside of the house. Also off the back, is the utility and laundry room and a 3 season porch. The house has many recent updates like: new roof, new gutters, rebuilt chimney and new boiler system for heat and hot water. These were all installed within the last year. The lot is level and has a 16 X 12 shed and features 2 paved driveways. One driveway was designed for boat or RV parking. House is in a convenient location and is near parks. Come take a look.

DAYS ON MARKET 1 LAST UPDATED 1/28/2026
YEAR BUILT 1954 COUNTY Hartford
STATUS Active PROPERTY TYPE(S) Single Family

SCHOOLS
Elementary School Thomas S. O'Connell
Jr. High School East Hartford
High School East Hartford


ADDITIONAL DETAILS
AIR Ceiling Fan(s), Wall Unit(s)
AIR CONDITIONING Yes
APPLIANCES Dishwasher, Dryer, Electric Range, Range Hood, Refrigerator, Washer
BASEMENT None
CONSTRUCTION Aluminum Siding, Frame
FIREPLACE Yes
HEAT Oil, Radiant
INTERIOR Open Floorplan
LOT 0.29 acre(s)
LOT DESCRIPTION Level
PARKING Paved, Private, Driveway
SEWER Public Sewer
STYLE Ranch
TAXES 6195
WATER Public
ZONING R-2
MORTGAGE CALCULATOR
   

TOTAL MONTHLY PAYMENT

0
P
I
*Estimate only



We respect your online privacy and will never spam you. By submitting this form with your telephone number you are consenting for Ryan Smith to contact you even if your name is on a Federal or State "Do not call List".

Listing courtesy of ERA Blanchard & Rossetto
Copyright Smart MLS. All rights reserved. Information is deemed reliable but not guaranteed to be accurate.

This IDX solution is (c) Diverse Solutions 2026.

Bristol: 985 Farmington Ave, Bristol, CT 06010
Avon: 412 West Avon Rd, Avon, CT 06001
(860) 578-2016 | ryansmith@tier1realestate.com

Subscribe to New Listings

  • Click here to review our privacy policy.
  • This field is for validation purposes and should be left unchanged.
The information on this website is for general information purposes only. Nothing on this site should be taken as legal advice for any individual case or situation. This information is not intended to create, and receipt or viewing does not constitute, a real estate agent and client relationship. Tier 1 Real Estate is licensed & insured. Call (860) 578-2016. Email with any questions you may have regarding this website, or anything associated with it. @2019 All Rights Reserved. 

linkedin facebook pinterest youtube rss twitter instagram facebook-blank rss-blank linkedin-blank pinterest youtube twitter instagram