7 Deerbrook Road, Norwich, CT 06360 (MLS # 24149211)

Save to Favorites
Print
Share
PRICE $279,900 dsIDX morgage calculator
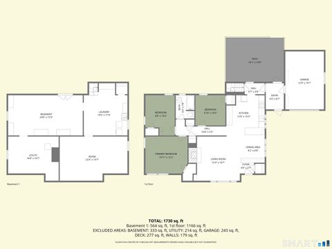
BEDS 3
BATHS 1
HOME SIZE 1,162 sqft
LOT SIZE 34,848 sqft

Welcome to this charming 3-bedroom, 1-bathroom ranch set on a generous 0.8 acre lot in a quiet Norwich neighborhood. Built in 1950, this 1,162 square foot home offers comfortable one-level living with classic character and room to personalize. The layout includes a bright living area, three well-proportioned bedrooms, and a full bath. Additional features include a full unfinished basement providing excellent storage or future finishing potential, fireplace in the living room, a one-car attached garage, a mudroom entryway and a newer rear deck overlooking the expansive yard. Conveniently located with easy access to local amenities and major routes, this property offers both space and opportunity.

DAYS ON MARKET 0 LAST UPDATED 2/4/2026
YEAR BUILT 1950 GARAGE SPACES 1.0
COUNTY New London STATUS Active
PROPERTY TYPE(S) Single Family

SCHOOLS
Elementary School Per Board of Ed
High School Per Board of Ed


ADDITIONAL DETAILS
AIR Wall Unit(s)
AIR CONDITIONING Yes
APPLIANCES Dishwasher, Dryer, Microwave, Oven, Range, Refrigerator, Washer
BASEMENT Full, Unfinished, Yes
CONSTRUCTION Frame, Vinyl Siding
FIREPLACE Yes
GARAGE Attached Garage, Yes
HEAT Baseboard, Hot Water, Natural Gas
LOT 0.8 acre(s)
LOT DESCRIPTION Cleared, Level
PARKING Paved, Private, Driveway, Attached
SEWER Septic Tank
STYLE Ranch
TAXES 5639
WATER Public
ZONING R40/R2
MORTGAGE CALCULATOR
   

TOTAL MONTHLY PAYMENT

0
P
I
*Estimate only



We respect your online privacy and will never spam you. By submitting this form with your telephone number you are consenting for Ryan Smith to contact you even if your name is on a Federal or State "Do not call List".

Listing courtesy of RE/MAX Legends
Copyright Smart MLS. All rights reserved. Information is deemed reliable but not guaranteed to be accurate.

This IDX solution is (c) Diverse Solutions 2026.

Bristol: 985 Farmington Ave, Bristol, CT 06010
Avon: 412 West Avon Rd, Avon, CT 06001
(860) 578-2016 | ryansmith@tier1realestate.com

Subscribe to New Listings

  • Click here to review our privacy policy.
  • This field is for validation purposes and should be left unchanged.
The information on this website is for general information purposes only. Nothing on this site should be taken as legal advice for any individual case or situation. This information is not intended to create, and receipt or viewing does not constitute, a real estate agent and client relationship. Tier 1 Real Estate is licensed & insured. Call (860) 578-2016. Email with any questions you may have regarding this website, or anything associated with it. @2019 All Rights Reserved. 

linkedin facebook pinterest youtube rss twitter instagram facebook-blank rss-blank linkedin-blank pinterest youtube twitter instagram