359 S Main Street, Colchester, CT 06415 (MLS # 24146024)

Save to Favorites
Print
Share

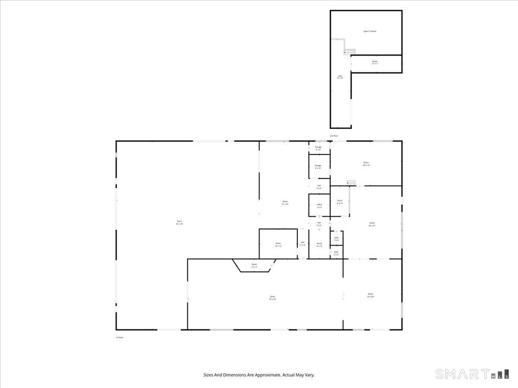
Located on 2.62 acres in the heart of Colchester's town center, this highly visible commercial lease opportunity offers outstanding access to Routes 2 and 11 and exceptional flexibility for a wide range of business uses. Currently operating as a small engine repair shop, the property features approximately 16,350 square feet of total building space, anchored by a 9,600 square foot main building that includes approximately 3,450 square feet of retail/office space and a 6,150 square foot service and production garage. Additional improvements include a 2-bay storage building totaling approximately 2,752 square feet, a 7-bay garage offering approximately 4,000 square feet, a loading dock, and expansive open yard area ideal for outdoor storage, fleet parking, or equipment staging. With excellent visibility, ample parking, and generous land area, this property is well suited for contractors, small engine repair, or service-related businesses, warehouse and distribution operations, trades, or light industrial uses, subject to zoning approvals. This is a rare opportunity to lease a substantial commercial facility in a prime Colchester location with strong traffic exposure and long-term growth potential.

DAYS ON MARKET 2 LAST UPDATED 12/24/2025
YEAR BUILT 1979 COUNTY New London
STATUS Active PROPERTY TYPE(S) Commercial


ADDITIONAL DETAILS
AIR Ceiling Fan(s)
AIR CONDITIONING Yes
CONSTRUCTION Block, Concrete, Steel Siding
EXTERIOR Storage
HEAT Forced Air, Oil
LOT 2.62 acre(s)
SEWER Public Sewer
WATER Public
ZONING TC
MORTGAGE CALCULATOR
   

TOTAL MONTHLY PAYMENT

0
P
I
*Estimate only



We respect your online privacy and will never spam you. By submitting this form with your telephone number you are consenting for Ryan Smith to contact you even if your name is on a Federal or State "Do not call List".

Listing courtesy of Berkshire Hathaway NE Prop.
Copyright Smart MLS. All rights reserved. Information is deemed reliable but not guaranteed to be accurate.

This IDX solution is (c) Diverse Solutions 2025.

Bristol: 985 Farmington Ave, Bristol, CT 06010
Avon: 412 West Avon Rd, Avon, CT 06001
(860) 578-2016 | ryansmith@tier1realestate.com

Subscribe to New Listings

  • Click here to review our privacy policy.
  • This field is for validation purposes and should be left unchanged.
The information on this website is for general information purposes only. Nothing on this site should be taken as legal advice for any individual case or situation. This information is not intended to create, and receipt or viewing does not constitute, a real estate agent and client relationship. Tier 1 Real Estate is licensed & insured. Call (860) 578-2016. Email with any questions you may have regarding this website, or anything associated with it. @2019 All Rights Reserved. 

linkedin facebook pinterest youtube rss twitter instagram facebook-blank rss-blank linkedin-blank pinterest youtube twitter instagram