14 Bluff Road, Ledyard, CT 06335 (MLS # 24144853)

Save to Favorites
Print
Share

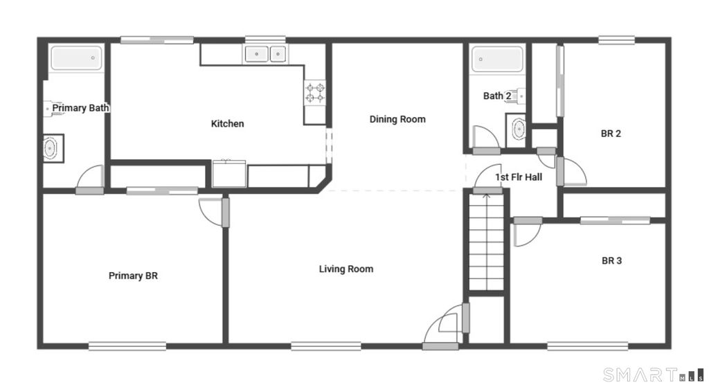
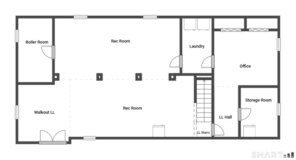
Take a 3D Tour or Enjoy a Video Walkthrough 24/7! Welcome to 14 Bluff Street in Gales Ferry, a well-designed 2002-built Ranch-style home offering space, flexibility, and a peaceful Connecticut setting near the Thames River. This home features 1,404 square feet above grade with 3 bedrooms and 2 full bathrooms, including a Primary bedroom with direct bath access, plus approximately 1,100 square feet of finished lower-level living space with a walkout entry, recreation area, Office, laundry, and storage. The property includes three parcels totaling approximately 0.50 acres, consisting of the home lot at 14 Bluff Street, an adjoining non-conforming lot at 12 Bluff Street, and an additional vacant lot across the street at 9 Bluff Street, offering added privacy and future possibilities. Enjoy city water, on-site septic, oil-fired baseboard hot water heat, and an above-ground pool ready for summer enjoyment with a new liner. Located near a public boat launch on the Thames River, this property combines indoor comfort, outdoor space, and a convenient location in one unique offering. NEXT STEP: Schedule your private showing TODAY!

DAYS ON MARKET 1 LAST UPDATED 12/14/2025
YEAR BUILT 2002 COUNTY New London
STATUS Active PROPERTY TYPE(S) Single Family

SCHOOLS
Elementary School Per Board of Ed
High School Per Board of Ed


ADDITIONAL DETAILS
AIR None
APPLIANCES Dishwasher, Electric Range, Range Hood, Refrigerator
BASEMENT Finished, Full, Storage Space, Walk-Out Access, Yes
CONSTRUCTION Frame, Vinyl Siding
HEAT Hot Water, Oil
LOT 0.5 acre(s)
LOT DESCRIPTION Cleared, Corner Lot, Level
PARKING None
POOL DESCRIPTION Outdoor Pool, Above Ground
SEWER Septic Tank
STYLE Ranch
TAXES 5205
WATER Public
ZONING R20
MORTGAGE CALCULATOR
   

TOTAL MONTHLY PAYMENT

0
P
I
*Estimate only



We respect your online privacy and will never spam you. By submitting this form with your telephone number you are consenting for Ryan Smith to contact you even if your name is on a Federal or State "Do not call List".

Listing courtesy of Garden Realty
Copyright Smart MLS. All rights reserved. Information is deemed reliable but not guaranteed to be accurate.

This IDX solution is (c) Diverse Solutions 2025.

Bristol: 985 Farmington Ave, Bristol, CT 06010
Avon: 412 West Avon Rd, Avon, CT 06001
(860) 578-2016 | ryansmith@tier1realestate.com

Subscribe to New Listings

  • Click here to review our privacy policy.
  • This field is for validation purposes and should be left unchanged.
The information on this website is for general information purposes only. Nothing on this site should be taken as legal advice for any individual case or situation. This information is not intended to create, and receipt or viewing does not constitute, a real estate agent and client relationship. Tier 1 Real Estate is licensed & insured. Call (860) 578-2016. Email with any questions you may have regarding this website, or anything associated with it. @2019 All Rights Reserved. 

linkedin facebook pinterest youtube rss twitter instagram facebook-blank rss-blank linkedin-blank pinterest youtube twitter instagram