240 Chapel Road, South Windsor, CT 06074 (MLS # 24143873)

Save to Favorites
Print
Share

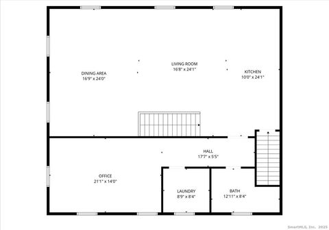
Rare opportunity to acquire a fully renovated, income-oriented flex commercial asset positioned on a high-visibility corner with strong frontage, traffic exposure, and excellent signage potential. Completely modernized in 2022, this property features a new parking lot, roof, windows, mechanicals, and fully updated interiors, offering a true turnkey investment with minimal near-term capital risk. The street-level commercial floor includes a professional reception and waiting area, four private offices, kitchenette, two bathrooms, and a warehouse space with overhead door, supporting a wide range of revenue-producing uses including contractors, light manufacturing, automotive, distribution, gym/studio, and service-based businesses. The fully renovated upper level adds significant flexibility and upside and is currently fully set up as a one-bedroom apartment with open-concept living space, kitchen, dining area, full bath, and laundry. This space may be owner-occupied for live/work convenience or utilized as a separate leased unit for additional income, significantly enhancing the property's overall financial performance (subject to zoning and approvals).With rapid access to major highway corridors, flexible industrial zoning, and strong investor and owner-user demand, this asset offers the rare ability to combine high-exposure business operations with income diversification. Ideal for owner-users seeking to offset operating costs or investors targeting durable cash flow

DAYS ON MARKET 3 LAST UPDATED 12/8/2025
YEAR BUILT 1955 COUNTY Hartford
STATUS Active PROPERTY TYPE(S) Commercial


ADDITIONAL DETAILS
CONSTRUCTION Concrete
LOT 0.7 acre(s)
LOT DESCRIPTION Cleared, Level
PARKING Paved, Parking Lot
SEWER Public Sewer
STORIES 2
TAXES 11203
WATER Public
ZONING I
MORTGAGE CALCULATOR
   

TOTAL MONTHLY PAYMENT

0
P
I
*Estimate only



We respect your online privacy and will never spam you. By submitting this form with your telephone number you are consenting for Ryan Smith to contact you even if your name is on a Federal or State "Do not call List".

Listing courtesy of Real Broker CT, LLC
Copyright Smart MLS. All rights reserved. Information is deemed reliable but not guaranteed to be accurate.

This IDX solution is (c) Diverse Solutions 2025.

Bristol: 985 Farmington Ave, Bristol, CT 06010
Avon: 412 West Avon Rd, Avon, CT 06001
(860) 578-2016 | ryansmith@tier1realestate.com

Subscribe to New Listings

  • Click here to review our privacy policy.
  • This field is for validation purposes and should be left unchanged.
The information on this website is for general information purposes only. Nothing on this site should be taken as legal advice for any individual case or situation. This information is not intended to create, and receipt or viewing does not constitute, a real estate agent and client relationship. Tier 1 Real Estate is licensed & insured. Call (860) 578-2016. Email with any questions you may have regarding this website, or anything associated with it. @2019 All Rights Reserved. 

linkedin facebook pinterest youtube rss twitter instagram facebook-blank rss-blank linkedin-blank pinterest youtube twitter instagram