12 Rivaldi Drive, North Branford, CT 06471 (MLS # 24141662)

Save to Favorites
Print
Share

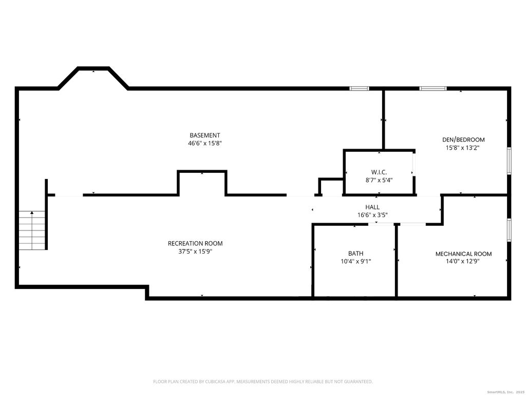
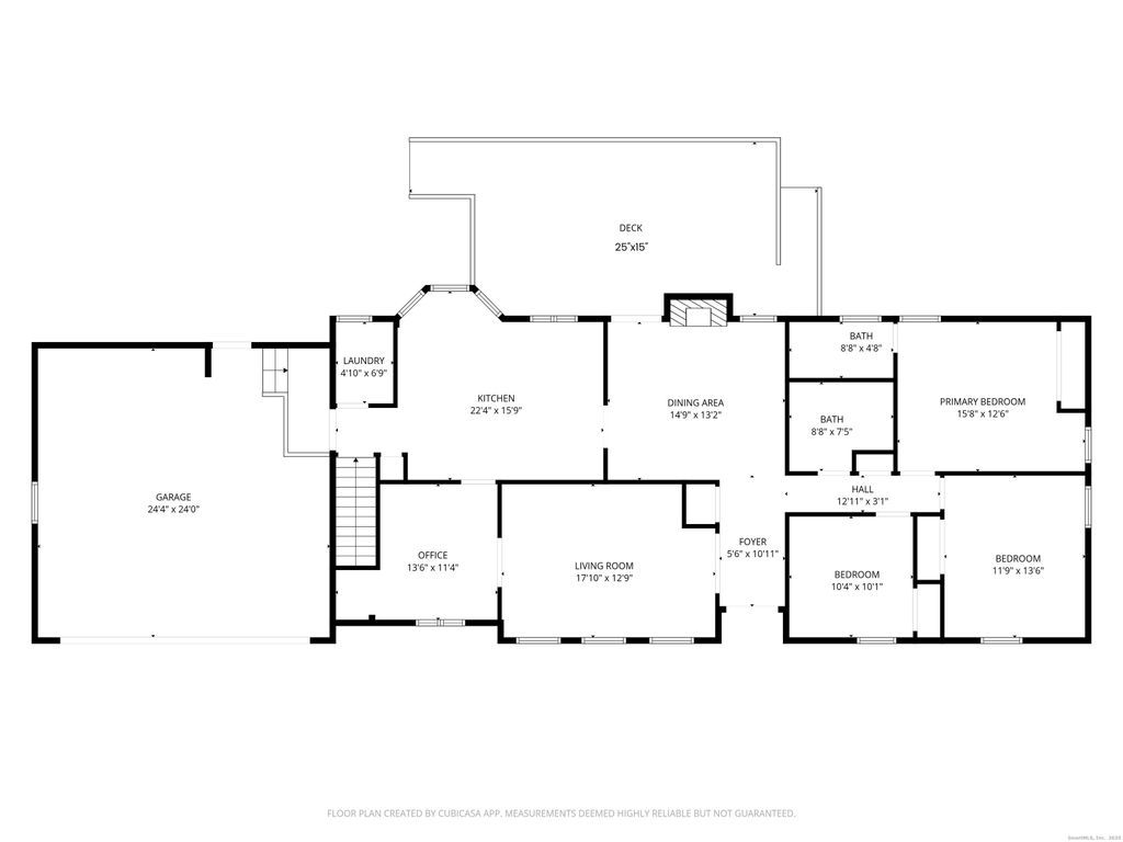
Welcome to this impressive ranch home set in a welcoming, family-friendly neighborhood. From the moment you arrive, you will notice the well-lit driveway with security camera and the inviting covered front porch with recessed lighting, framed by rose and butterfly bushes. Inside, a warm foyer leads you into a thoughtfully designed layout with hardwood floors throughout most of the home. To the right are two guest bedrooms, a full guest bath, and a spacious primary bedroom with its own private bath. To the left, the living room features beautiful wood built-ins and French doors that open to a cozy den or home office. Just beyond, the newly renovated eat-in kitchen shines with new countertops, sink, backsplash, and appliances. Off the kitchen, the formal dining room with fireplace offers direct access to the expansive 25x15 deck with lighted railings, gated stairs on both ends, and a stunning 20x12 gazebo with solar lighting, fan, netting, and curtain panels, perfect for outdoor entertaining. To complete the main level is a convenient laundry room with a utility sink. A two-car garage provides easy access to both the backyard and kitchen. The partially finished lower level offers a built-in bar, surround sound, full bath, bonus room with walk-in closet, workshop, and separate mechanical room. Truly move-in ready and waiting for its next owner. Contingent on the seller finding suitable housing.

DAYS ON MARKET 3 LAST UPDATED 12/10/2025
YEAR BUILT 1998 GARAGE SPACES 2.0
COUNTY New Haven STATUS Pending
PROPERTY TYPE(S) Single Family

SCHOOLS
Elementary School Jerome Harrison
Jr. High School North Branford
High School North Branford


ADDITIONAL DETAILS
AIR Central Air
AIR CONDITIONING Yes
APPLIANCES Dishwasher, Dryer, Electric Range, Microwave, Refrigerator, Washer
BASEMENT Full, Partially Finished, Storage Space, Yes
CONSTRUCTION Frame, Vinyl Siding
FIREPLACE Yes
GARAGE Attached Garage, Yes
HEAT Hot Water, Oil
LOT 0.96 acre(s)
LOT DESCRIPTION Level
PARKING Garage Door Opener, Private, Driveway, Paved, Attached
SEWER Public Sewer
STYLE Ranch
TAXES 10395
WATER Well
ZONING R40
MORTGAGE CALCULATOR
   

TOTAL MONTHLY PAYMENT

0
P
I
*Estimate only



We respect your online privacy and will never spam you. By submitting this form with your telephone number you are consenting for Ryan Smith to contact you even if your name is on a Federal or State "Do not call List".

Listing courtesy of William Raveis Real Estate
Copyright Smart MLS. All rights reserved. Information is deemed reliable but not guaranteed to be accurate.

This IDX solution is (c) Diverse Solutions 2025.

Bristol: 985 Farmington Ave, Bristol, CT 06010
Avon: 412 West Avon Rd, Avon, CT 06001
(860) 578-2016 | ryansmith@tier1realestate.com

Subscribe to New Listings

  • Click here to review our privacy policy.
  • This field is for validation purposes and should be left unchanged.
The information on this website is for general information purposes only. Nothing on this site should be taken as legal advice for any individual case or situation. This information is not intended to create, and receipt or viewing does not constitute, a real estate agent and client relationship. Tier 1 Real Estate is licensed & insured. Call (860) 578-2016. Email with any questions you may have regarding this website, or anything associated with it. @2019 All Rights Reserved. 

linkedin facebook pinterest youtube rss twitter instagram facebook-blank rss-blank linkedin-blank pinterest youtube twitter instagram