3 Trailside Drive, Wallingford, CT 06492 (MLS # 24134537)

Save to Favorites
Print
Share

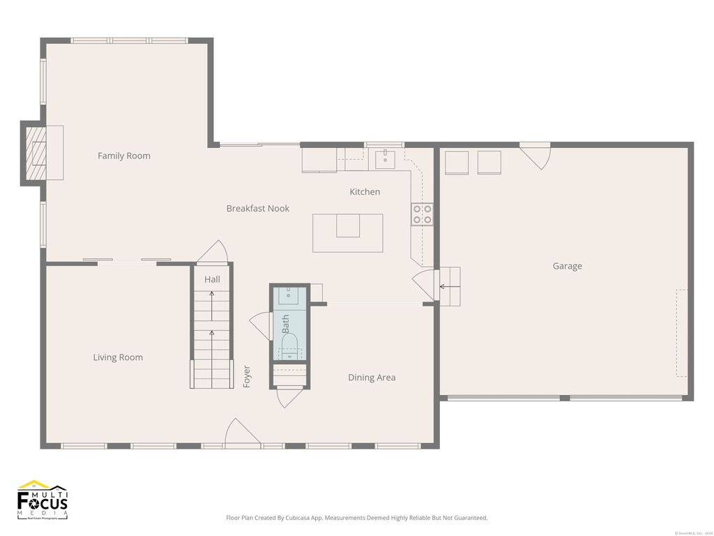
Completely updated 4-bedroom Colonial in the highly sought-after Fairlawn Farms neighborhood! This home perfectly blends modern updates with timeless charm. The open-concept floor plan, in-ground swimming pool, fully equipped outdoor kitchen, an expansive patio with a gazebo and a custom fireplace make it an entertainer's dream. Inside, you'll find elegant touches such as tray ceilings in the dining room, recessed lighting throughout, gleaming hardwood floors, and a convenient second-floor laundry. The beautifully updated eat-in kitchen features quartz countertops, stainless steel appliances, abundant cabinet space, and sliding doors that open to your private backyard oasis. In the family room, you will find a pellet stove, which heats the entire home, minimizing your oil bill. Upstairs, the spacious bedrooms include a luxurious primary suite with a spa-like bathroom featuring a standalone soaking tub - the perfect place to unwind after a long day. Enjoy even more living and entertaining space in the partially finished basement, complete with a built-in dry bar, recessed lighting, and moisture-resistant flooring. Recent updates include a brand new roof, freshly paved driveway and energy-efficient windows for peace of mind. Schedule your private showing today - this home TRULY has it all!

DAYS ON MARKET 6 LAST UPDATED 10/24/2025
YEAR BUILT 1993 GARAGE SPACES 2.0
COUNTY New Haven STATUS Pending
PROPERTY TYPE(S) Single Family

SCHOOLS
Elementary School Per Board of Ed
High School Mark T. Sheehan


ADDITIONAL DETAILS
AIR Central Air
AIR CONDITIONING Yes
APPLIANCES Dishwasher, Disposal, Dryer, Electric Cooktop, Electric Range, Ice Maker, Microwave, Refrigerator, Washer, Wine Cooler
BASEMENT Full, Partial, Yes
CONSTRUCTION Frame, Vinyl Siding
FIREPLACE Yes
GARAGE Attached Garage, Yes
HEAT Baseboard, Fireplace Insert, Oil
LOT 0.57 acre(s)
LOT DESCRIPTION Cleared, Corner Lot, Level
PARKING Attached
POOL DESCRIPTION Outdoor Pool, Vinyl, In Ground
SEWER Public Sewer
STYLE Colonial
TAXES 9088
WATER Public
ZONING RU40
MORTGAGE CALCULATOR
   

TOTAL MONTHLY PAYMENT

0
P
I
*Estimate only



We respect your online privacy and will never spam you. By submitting this form with your telephone number you are consenting for Ryan Smith to contact you even if your name is on a Federal or State "Do not call List".

Listing courtesy of BHGRE Gaetano Marra Homes
Copyright Smart MLS. All rights reserved. Information is deemed reliable but not guaranteed to be accurate.

This IDX solution is (c) Diverse Solutions 2025.

Bristol: 985 Farmington Ave, Bristol, CT 06010
Avon: 412 West Avon Rd, Avon, CT 06001
(860) 578-2016 | ryansmith@tier1realestate.com

Subscribe to New Listings

  • Click here to review our privacy policy.
  • This field is for validation purposes and should be left unchanged.
The information on this website is for general information purposes only. Nothing on this site should be taken as legal advice for any individual case or situation. This information is not intended to create, and receipt or viewing does not constitute, a real estate agent and client relationship. Tier 1 Real Estate is licensed & insured. Call (860) 578-2016. Email with any questions you may have regarding this website, or anything associated with it. @2019 All Rights Reserved. 

linkedin facebook pinterest youtube rss twitter instagram facebook-blank rss-blank linkedin-blank pinterest youtube twitter instagram