64 Boston Street, Guilford, CT 06437 (MLS # 24134042)

Save to Favorites
Print
Share
PRICE $1,000,000 dsIDX morgage calculator
BEDS 3
BATHS 2
HOME SIZE 2,657 sqft
LOT SIZE 24,394 sqft

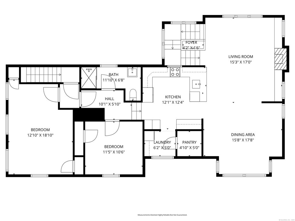
Built in 1845, this in-town colonial is located four doors down from the Guilford Green. Originally, a single-family home, it was a two-family dwelling for many years and more recently, a combined residence and home law office, it could now be either a one-family home, a two-family home or a home office. It includes a stunning first floor consisting of a formal living room, dining Room, family room, first floor bedroom, full bath with shower in tub and room for a nicely sized kitchen which would need to be installed. There is a stairwell to the second floor and a bonus room and mudroom providing access to both a fenced-in yard and the attached large garage. Two rooms on the first floor have fireplaces that have not been used by the current owner but could potentially be reopened if desired. The first floor is also served by a town approved ramp entrance. In 2006 the previous three-room second floor was significantly expanded by a Nelson Denny designed additions including a great room consisting of a large living room with high (10'to 14') ceilings, lots of windows and a belvedere providing natural light, as well as a gas fireplace, floor to ceiling bookshelves and cabinetry. The second floor can be reached by either a stairwell from the front door or a second stairwell providing access from the living room to a covered patio, fenced side yard and parking area. The dining area in the great room is equally spacious and perfect for either intimate meals or large dinner parties.

DAYS ON MARKET 1 LAST UPDATED 10/22/2025
TRACT Downtown YEAR BUILT 1845
COMMUNITY Downtown GARAGE SPACES 2.0
COUNTY New Haven STATUS Active
PROPERTY TYPE(S) Single Family

SCHOOLS
Elementary School Calvin Leete
High School Guilford


ADDITIONAL DETAILS
AIR None
APPLIANCES Dishwasher, Dryer, Oven, Range, Refrigerator, Washer
BASEMENT Dirt Floor, Partial, Yes
CONSTRUCTION Clapboard, Frame, Wood Siding
FIREPLACE Yes
GARAGE Attached Garage, Yes
HEAT Baseboard, Oil, Zoned
INTERIOR Entrance Foyer
LOT 0.56 acre(s)
LOT DESCRIPTION Level
PARKING Gravel, Off Street, Garage Door Opener, Private, Driveway, Attached
SEWER Septic Tank
STYLE Antique, Colonial
SUBDIVISION Downtown
TAXES 7713
WATER Public
ZONING R-1
MORTGAGE CALCULATOR
   

TOTAL MONTHLY PAYMENT

0
P
I
*Estimate only



We respect your online privacy and will never spam you. By submitting this form with your telephone number you are consenting for Ryan Smith to contact you even if your name is on a Federal or State "Do not call List".

Listing courtesy of William Raveis Real Estate
Copyright Smart MLS. All rights reserved. Information is deemed reliable but not guaranteed to be accurate.

This IDX solution is (c) Diverse Solutions 2025.

Bristol: 985 Farmington Ave, Bristol, CT 06010
Avon: 412 West Avon Rd, Avon, CT 06001
(860) 578-2016 | ryansmith@tier1realestate.com

Subscribe to New Listings

  • Click here to review our privacy policy.
  • This field is for validation purposes and should be left unchanged.
The information on this website is for general information purposes only. Nothing on this site should be taken as legal advice for any individual case or situation. This information is not intended to create, and receipt or viewing does not constitute, a real estate agent and client relationship. Tier 1 Real Estate is licensed & insured. Call (860) 578-2016. Email with any questions you may have regarding this website, or anything associated with it. @2019 All Rights Reserved. 

linkedin facebook pinterest youtube rss twitter instagram facebook-blank rss-blank linkedin-blank pinterest youtube twitter instagram