512 W Center Street, Manchester, CT 06040 (MLS # 24070030)

Save to Favorites
Print
Share
PRICE $2,999,900 dsIDX morgage calculator
SIZE 21,264 sqft
LOT SIZE 4.38 ac

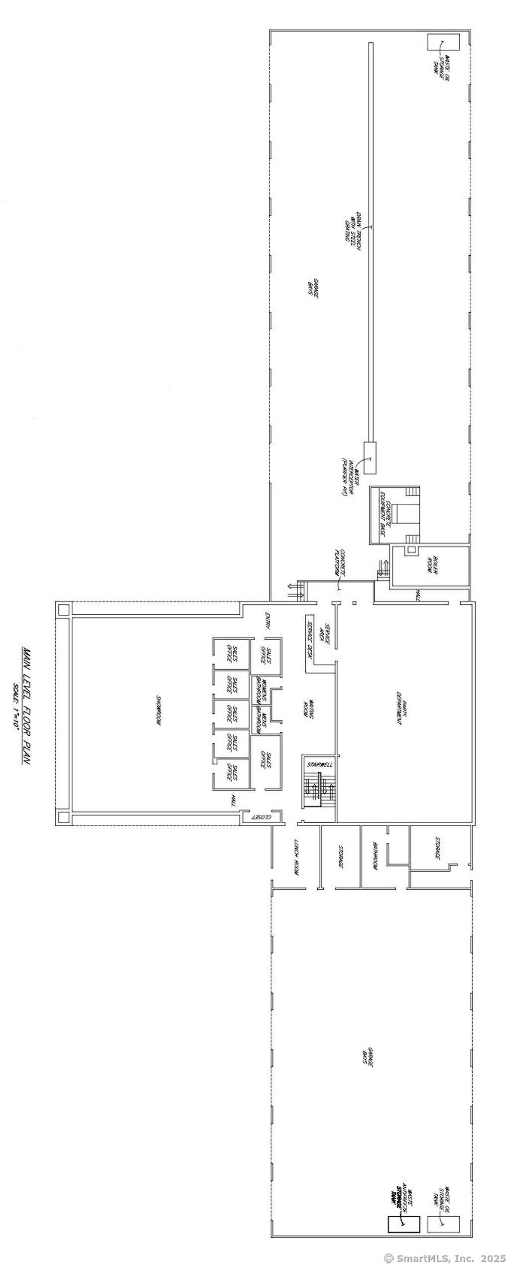
Exceptional Turnkey Automotive Dealership for Sale in High-Traffic Location This well-established 21,000-square-foot automotive dealership on a 4.38-acre lot offers an exceptional opportunity for a new owner. With over 1,200 square feet of road frontage and 275 parking spaces, the facility includes expansive sales, service, parts, and body shop areas - making it suitable for a variety of business uses. The service department features 16 bays equipped with 8 brand new rotary lifts, a tire machine, wheel balancer, A/C machine, forklift, bulk oil tanks, welder, transmission jack, and parts washer. The 10-bay body shop is outfitted with a lift, brand new frame machine, floor jacks, and a state-of-the-art GFS spray booth. This turnkey operation comes complete with all necessary equipment to ensure a seamless transition for the new owner. Situated in a high-traffic location, this property represents an exceptional investment opportunity for an automotive dealership or any other type of business.

DAYS ON MARKET 333 LAST UPDATED 3/14/2025
YEAR BUILT 1972 COUNTY Hartford
STATUS Pending PROPERTY TYPE(S) Commercial


ADDITIONAL DETAILS
AIR Central Air
AIR CONDITIONING Yes
CONSTRUCTION Brick, Frame, Metal Siding
HEAT Forced Air, Hot Water
LOT 4.38 acre(s)
LOT DESCRIPTION Cleared, Corner Lot, Level
PARKING Off Street, Paved, Parking Lot
SEWER Public Sewer
STORIES 2
TAXES 30203
WATER Public
ZONING B2
MORTGAGE CALCULATOR
   

TOTAL MONTHLY PAYMENT

0
P
I
*Estimate only



We respect your online privacy and will never spam you. By submitting this form with your telephone number you are consenting for Ryan Smith to contact you even if your name is on a Federal or State "Do not call List".

Listing courtesy of Artioli Realty LLC
Copyright Smart MLS. All rights reserved. Information is deemed reliable but not guaranteed to be accurate.

This IDX solution is (c) Diverse Solutions 2025.

Bristol: 985 Farmington Ave, Bristol, CT 06010
Avon: 412 West Avon Rd, Avon, CT 06001
(860) 578-2016 | ryansmith@tier1realestate.com

Subscribe to New Listings

  • Click here to review our privacy policy.
  • This field is for validation purposes and should be left unchanged.
The information on this website is for general information purposes only. Nothing on this site should be taken as legal advice for any individual case or situation. This information is not intended to create, and receipt or viewing does not constitute, a real estate agent and client relationship. Tier 1 Real Estate is licensed & insured. Call (860) 578-2016. Email with any questions you may have regarding this website, or anything associated with it. @2019 All Rights Reserved. 

linkedin facebook pinterest youtube rss twitter instagram facebook-blank rss-blank linkedin-blank pinterest youtube twitter instagram